全國服務熱線:
185-6872-3509
地址:河南省新鄉縣小冀鎮興隆路
如您對產品有任何問題,可以馬上聯系我們
詳情介紹
工作原理:
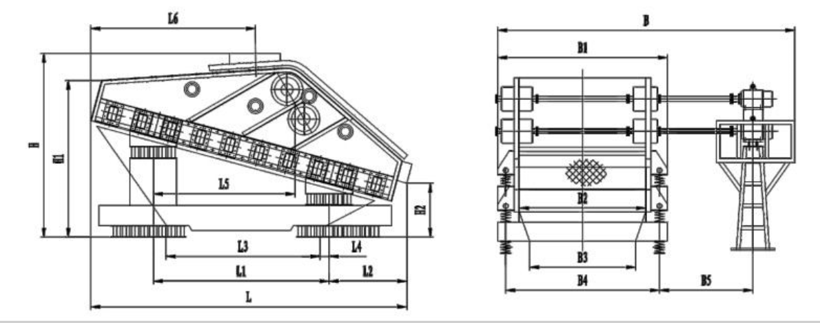
ZSL系列大型冷礦振動篩屬于雙軸直線振動篩,由兩臺電動機通過傳動軸外拖動激振器作反向自同步旋轉,使篩箱產生較大振幅的直線振動,電機不參振,這種振動篩具有生產能力大、工作可靠、振幅調節方便、傳給基礎的動負荷小等優點。已廣泛用于冶金、礦山、煤炭、港口等工業部門,主要用于溫度在150°C以下;冷燒結礦分級作業。
結構特點:
該系列振動篩由篩箱、激振器、支承彈簧、隔振架、二次隔振彈簧、電動機及其支架等組成。
篩框部件由篩框、篩板及緊固裝置組成。篩框側板用整塊優質鋼板制造,側板、加強筋板和橫梁、激振器底架間的連接采用高強度螺栓與自鎖式螺母或環槽鉚釘連接,牢固可靠。
激振器一般安裝在篩框上部的兩邊側板上。制成上振式結構,激振器也可布置在篩框的上部用萬向聯軸器連接,激振器采用迷宮環密封,干油潤滑。該系列冷框篩篩板采用耐磨合金鋼或不銹鋼篩板,具有不變形,壽命長的特點。
外形示意圖:

技術參數:
型號 | 給料粒度 | 處理量 | 電動機 | ||
型號 | 功率 | 電壓 | |||
ZSL1860 | <200 | 100-250 | Y200L-8 | 2*15 | 380 |
ZSL2060 | <200 | 200-300 | Y200L-8 | 2*15 | |
ZSL2575 | <200 | 250-400 | Y225S-8 | 2*18.5 | |
ZSL3070 | <300 | 350-500 | Y225M-8 | 2*22 | |
ZSL3175 | <300 | 450-600 | Y225M-8 | 2*22 | |
ZSL3090 | <300 | 550-700 | Y280S-8 | 2*37 | |
-
承諾服務
管家式售后服務體系,真正讓你后顧無憂
-
質量認證
工程質量有認證,豐富的工程實踐經驗
-
實力過硬
深耕行業近十年,擁有行業主流技術
-
專注領域
振動設備研發、生產、銷售、服務于一體
篩分設備
雙層滾筒篩